Starting September 2023
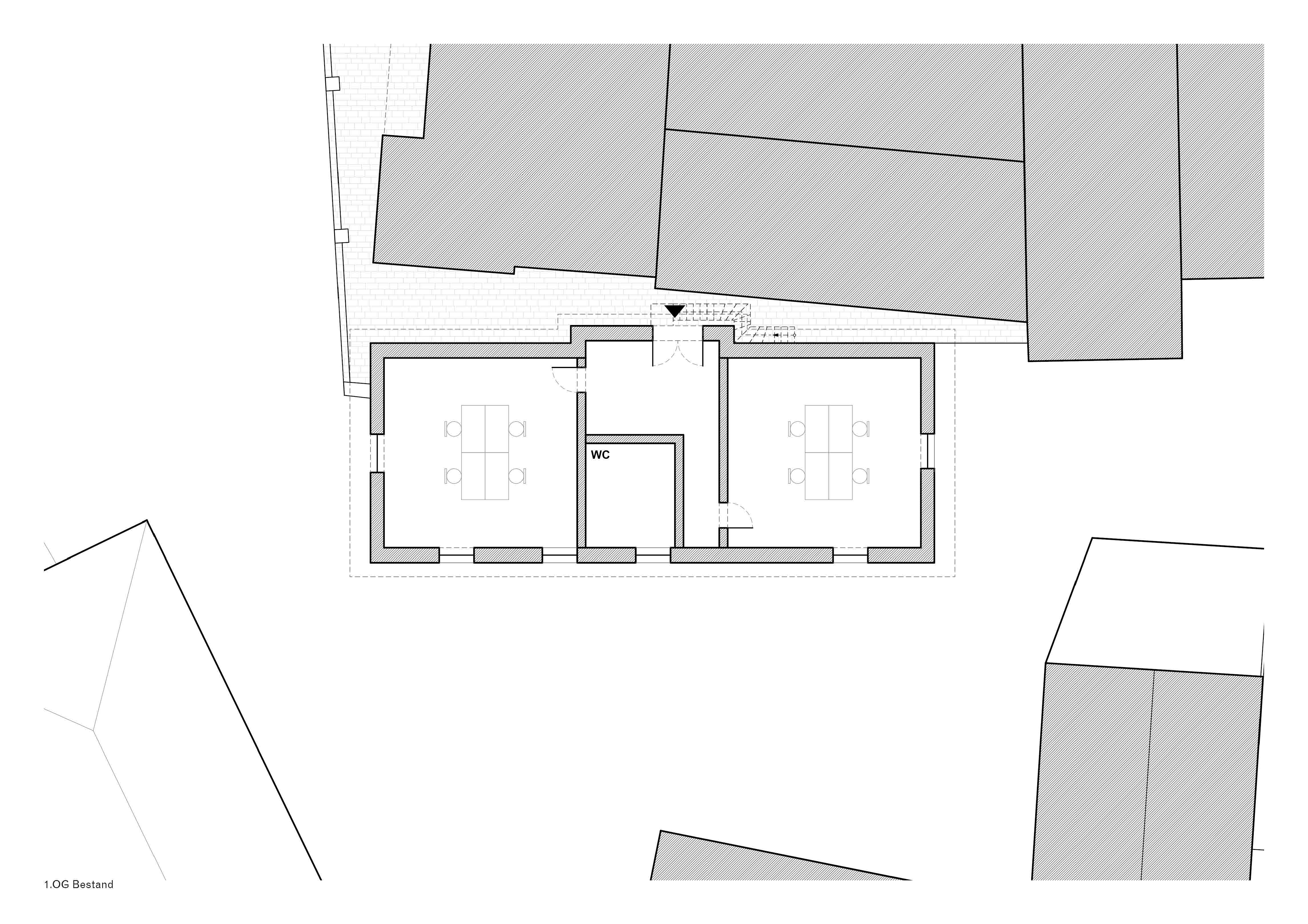
Phase 03: The Common-Inbetween - Task 2
How can the former post office which is owned by the municipality be transformed – structurally and programmatically?
Artist Residency - Kolja Hein, Simon Ibald
![]() 
![]() 
![]() 
![]() 
![]() 
![]() 
![]() 
![]() 
![]() 
![]() 
![]() 
![]() 
![]() 
![]() 
Roman Stamborski Cirenia Jahn Fernandez Flavia Vilkama
![]() 
![]() 
![]() 
![]() 
![]() 
![]() 
![]() 
![]() 
![]() 
![]() 
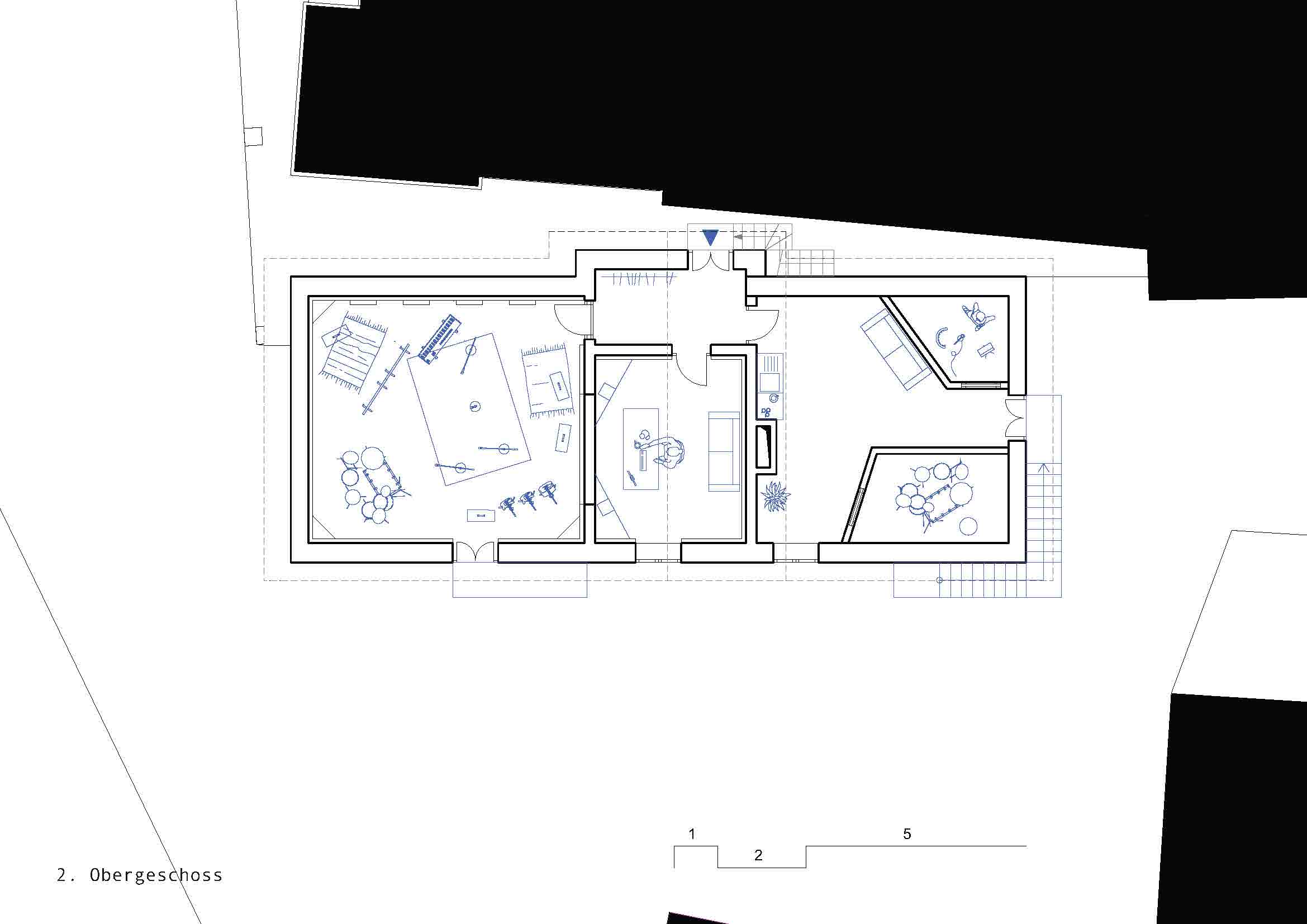
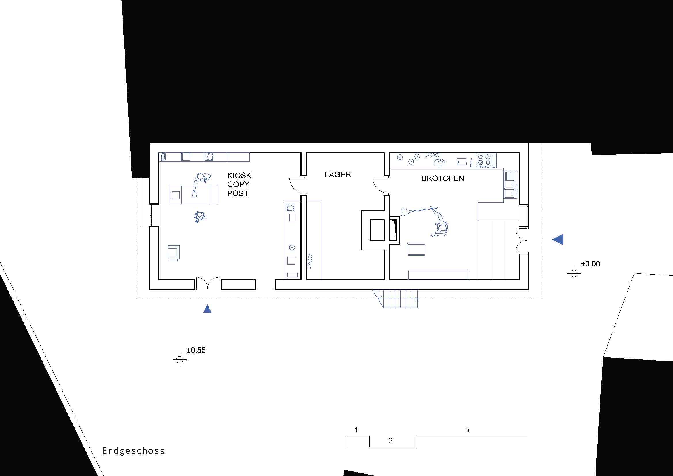
Phase 03: The Common-Inbetween - Task 2
How can the former post office which is owned by the municipality be transformed – structurally and programmatically?
Artist Residency - Kolja Hein, Simon Ibald
 
 
 
 
 
 
 
 
 
 
 
 
 
 
Roman Stamborski Cirenia Jahn Fernandez Flavia Vilkama
 
 
 
 
 
 
 
 
 
 
Nina Baulesch, Isiah Mruck
 
 
 
 
 
 
 
 
 
 
 
Cristiana Bombelaj Helen Niebuhr
 
 
 
 
 
 
 
 
 
 
 
 
 
 
 
 
 
 
 
 
 
 
 
 
 
 
 
Valerian Althammer, Tessa Gläser, Laurene Jingxi Cen
 
 
 
 
 
 
 
 
 
 
 
 
 
Felix Kromrey Myriam Lemberger
 
 
 
 
 
 
 
 
 
 
 
 
 
 
 
 
 
 
 
 
 
 
 
 
 
 
 
 
Emile Vasquez-Pacheco, Natalie Saloch
 
 
 
 
 
 
 
 
 
 
 
︎︎︎︎